Planning Commission Recommends Massive 13-Story Student Apartment Building Downtown
The East Lansing Planning Commission recommended approval of a 13-story apartment building proposed to be built downtown at a site that is currently the Bailey Street surface parking lot, near Albert Avenue.
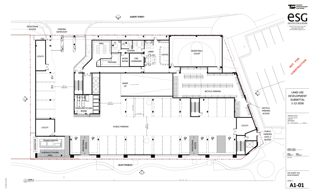
The massive project would include 236 units of studio, one, two and three bedroom apartments, totaling 505 beds. If the project is approved, the apartment will be primarily marketed to Michigan State University students and units will be expensive – ranging from $1,400 or $1,500 monthly for studio apartments to more than $4,000 for a three bedroom unit.
The project would include two stories of public parking, an indoor pool and spa, grilling stations, a fitness center, a basketball court and a coffee shop, among other amenities. If City Council eventually approves the project, developers hope to begin construction this summer, and it is expected to take two years to build the apartment complex.

While the Planning Commission recommended the apartment, there are still unanswered questions about the project – primarily about how developers will meet a requirement that 25% of units be dedicated to affordable housing, owner occupied units or some other category that diversifies the downtown housing stock.
The city’s diverse downtown housing policy and if it prevents developers from building downtown have been a topic of discussion at recent city meetings. Principal Planner Landon Bartley said next month, council will likely hear new ordinance proposals to offer developers more pathways to bring developments, while helping the city carry out its housing goals. These proposals include a new fee in lieu program that would allow developers to pay a fee instead of meeting the 25% requirement, and a system that would allow developers to transfer the diverse housing units to a different building outside the downtown district.
Cody Dietrich, vice president of development for Tareen Development Partners, the company proposing the apartment, said to build affordable units on-site the developer would likely need a tax break from the city.
“Something has to give,” Dietrich said. “It’s not financially feasible to put those units out at those… lower rents, and justify all those construction costs and things like that.”
If the city allows it, Dietrich said his company is considering buying land across on Abbot Road, near City Hall to build a new condo or affordable apartment building to fulfill the diverse housing requirement.
Dietrich also addressed parking, a primary concern in previous discussions about the project. The building will replace 86 existing parking spaces on the surface lot with 83 spaces in the new building. The parking spaces will be public, none of the spaces will be reserved for residents.
The city has about 430 parking spaces available to rent in its parking structure and would be comfortable leasing half of those spaces to a new development for its tenants to use, Dietrich explained. He estimated Tareen would purchase between 120 and 150 spaces for tenants.

Tareen expects about 20 or 30% of its occupants to have a car, and most of these tenants would rent a parking space in a city lot as part of their lease agreement. Dietrich said developers anticipate most tenants will not have cars because they are students, and bars and grocery stores will be within walking distance of the apartment. Some tenants may keep their cars in a commuter lot that is available to MSU students, Dietrich said.
The Planning Commission recommended the project in a 6-2 vote, with some commissioners in favor saying the city needs to increase its housing stock downtown. Even though the units in the new apartment would be expensive, developers argued that there is a scarcity of student rentals in the city, and even adding expensive units would decrease the competition for more affordable apartments.
Commission Chair Joseph Sullivan commended developers for working with nearby property owners and residents to address concerns early in the process. An apartment proposed for the same site was rejected by City Council in 2023 after several residents and downtown business owners complained about parking being lost.
Planning Commission Vice Chair Ed Wagner and Commissioner Lauren LaPine voted against recommending the project. LaPine said she still doesn’t understand how developers will meet the city’s diverse housing requirement and she is concerned that adding a 13-story building to the area will hurt surrounding properties.
The proposal will go before the City Council at a future meeting. Developers will need to gain approval from the council before beginning construction.
